1 / 5
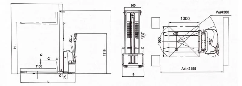
| Load Capacity | 1500kg | Min. Fork Height | 85mm |
| Operation Type | All Electric | Dimensions (L/W) | 2150 / 750mm |
| Body Weight | 510kg | Drive Motor | 48v / 1500w |
| Lifting Pump Power | 48v / 2200kw | Braking Method | Electronic Brake |
| Mast Thickness | 8mm | Safety Function | Reversing Emergency / Power-off Braking |












